物件ID:175816
情報公開日:2025年10月03日
情報更新日:2025年10月03日
立地
-
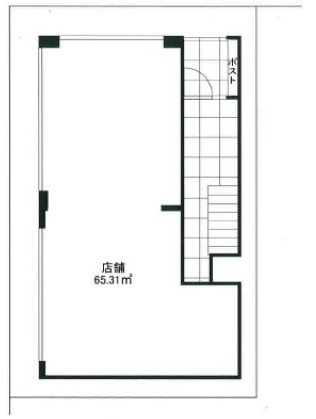
住所 東京都墨田区緑二丁目21-10 建物名/所在階 1階 最寄駅 都営大江戸線両国駅
徒歩6分近隣駅1 ー 近隣駅2 ー
費用/契約
-
造作価格 ー 賃料(坪単価) 330,000円(16,703円) 管理費/共益費(坪単価) 40,000円(2,024円) 保証金/敷金 0ヶ月 / 6ヶ月 償却 ご相談 礼金 0ヶ月 更新料/再契約料 ー その他費用 ー 仲介手数料 1ヶ月 その他手数料 ー 契約期間 5年 契約種別
用途
-
物件の現況 ー 可能用途 指定あり 坪数 19.76坪
- 備考
- ◆居抜きビュッフェ◆ 「未公開情報」や「撤退情報」も多数掲載中!!
◆店舗高値買取センター◆ 飲食店の居抜き譲渡や移転はご相談ください



















