物件ID:174881
情報公開日:2025年09月27日
情報更新日:2025年09月27日
立地
-
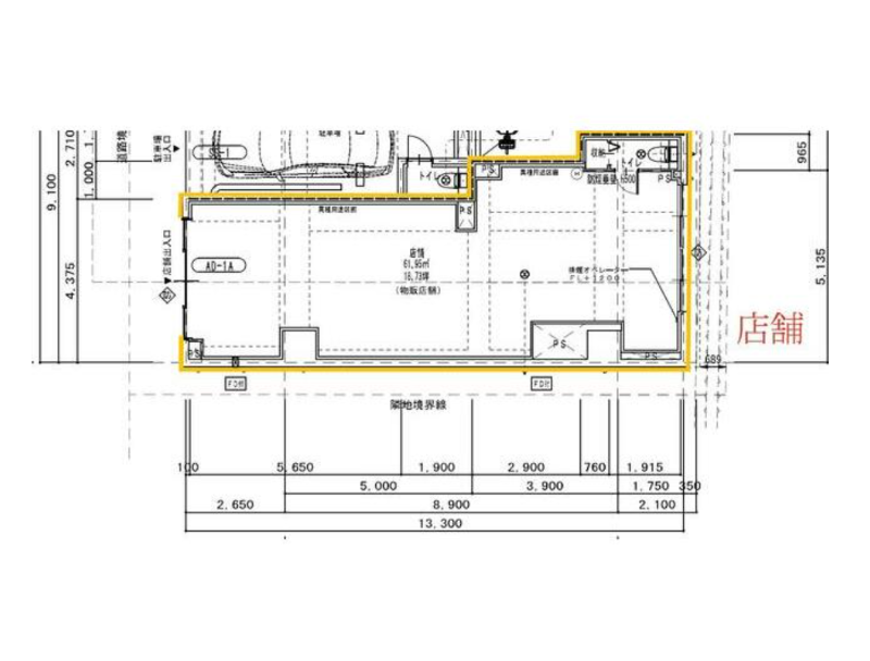
住所 東京都墨田区亀沢四丁目5-8 建物名/所在階 Skywood錦糸町/1階 最寄駅 JR総武本線錦糸町駅
徒歩7分近隣駅1 ー 近隣駅2 ー
費用/契約
-
造作価格 ー 賃料(坪単価) 468,250円(24,986円) 管理費/共益費(坪単価) 16,500円(880円) 保証金/敷金 6ヶ月 / 0ヶ月 償却 4ヶ月 礼金 0ヶ月 更新料/再契約料 1ヶ月 その他費用 ー 仲介手数料 1ヶ月 その他手数料 ー 契約期間 3年 契約種別
用途
-
物件の現況 ー 可能用途 指定あり 坪数 18.74坪
- 備考























