物件ID:174448
情報公開日:2025年09月24日
情報更新日:2025年10月29日
立地
-
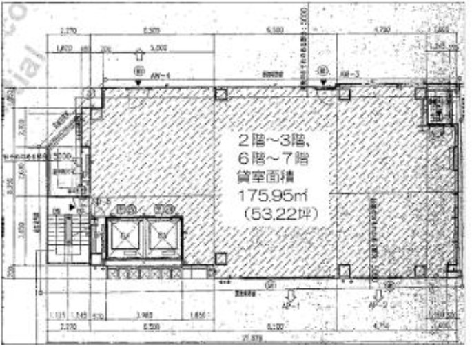
住所 東京都墨田区江東橋三丁目13-6 建物名/所在階 錦糸町/8階 最寄駅 JR中央・総武線錦糸町駅
徒歩1分近隣駅1 ー 近隣駅2 ー
費用/契約
-
造作価格 ー 賃料(坪単価) 2,222,000円(43,995円) 管理費/共益費(坪単価) ご相談(ご相談) 保証金/敷金 12ヶ月 / 0ヶ月 償却 20% 礼金 1ヶ月 更新料/再契約料 ー その他費用 ー 仲介手数料 1ヶ月 その他手数料 ー 契約期間 ー 契約種別 普通賃貸借
用途
-
物件の現況 ー 可能用途 指定あり 坪数 50.51坪
- 備考




















