物件ID:174093
情報公開日:2025年09月20日
情報更新日:2025年12月15日
立地
-
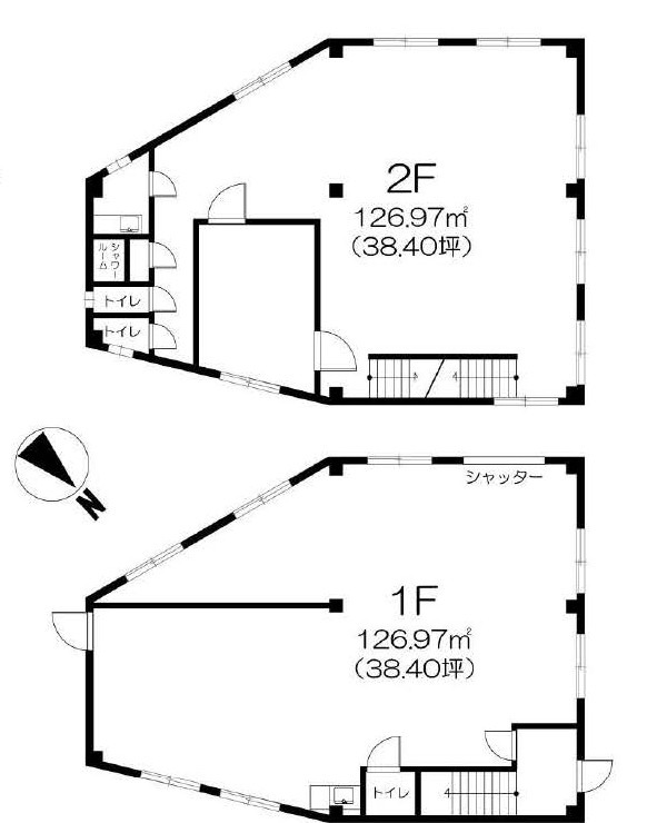
住所 東京都稲城市百村1188 建物名/所在階 百村ビル/1~2階 最寄駅 京王相模原線稲城駅
徒歩5分近隣駅1 ー 近隣駅2 ー
費用/契約
-
造作価格 ー 賃料(坪単価) 605,000円(7,875円) 管理費/共益費(坪単価) ー(ー) 保証金/敷金 3ヶ月 / 0ヶ月 償却 1ヶ月 礼金 1ヶ月 更新料/再契約料 1ヶ月 その他費用 ー 仲介手数料 1ヶ月 その他手数料 ー 契約期間 3年 契約種別 普通賃貸借
用途
-
物件の現況 ー 可能用途 指定あり 坪数 76.82坪
- 備考



















