物件ID:173827
情報公開日:2025年09月18日
情報更新日:2025年09月18日
立地
-
住所 東京都中央区日本橋大伝馬町12-3 建物名/所在階 地下1階 最寄駅 東京メトロ日比谷線小伝馬町駅
徒歩4分近隣駅1 ー 近隣駅2 ー
費用/契約
-
造作価格 ー 賃料(坪単価) 329,800円(20,174円) 管理費/共益費(坪単価) 54,000円(3,303円) 保証金/敷金 5ヶ月 / 0ヶ月 償却 2ヶ月 礼金 0ヶ月 更新料/再契約料 ー その他費用 ー 仲介手数料 1ヶ月 その他手数料 ー 契約期間 2年 契約種別
用途
-
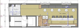
物件の現況 ー 可能用途 何業も可 坪数 16.35坪
- 備考
- ◆店舗高値買取センター◆ 飲食店の居抜き譲渡や移転はご相談ください
◆居抜きビュッフェ◆ 「未公開情報」や「撤退情報」も多数掲載中!!






















