物件ID:173684
情報公開日:2025年09月17日
情報更新日:2025年09月17日
立地
-
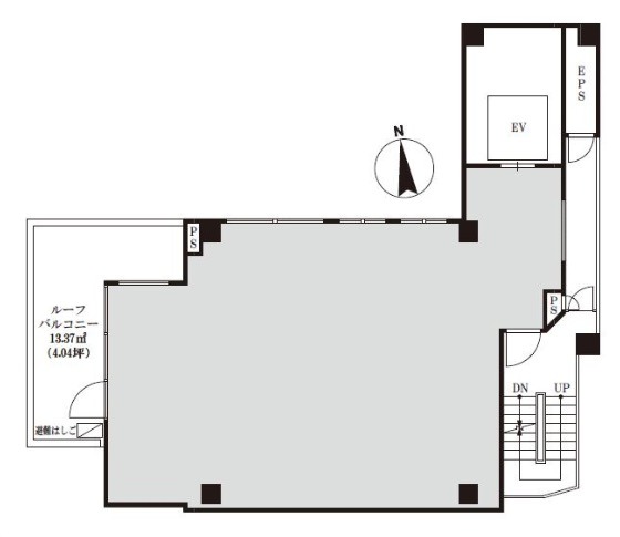
住所 東京都台東区浅草一丁目17-4 建物名/所在階 VORT浅草雷門/9階 最寄駅 東京メトロ銀座線浅草駅
徒歩3分近隣駅1 都営浅草線浅草駅
徒歩4分近隣駅2 東武伊勢崎線浅草駅
徒歩5分
費用/契約
-
造作価格 ー 賃料(坪単価) 918,764円(41,800円) 管理費/共益費(坪単価) ー(ー) 保証金/敷金 0ヶ月 / 10ヶ月 償却 0% 礼金 0ヶ月 更新料/再契約料 1ヶ月 その他費用 ルーフバルコニー使用料:月額5,940円 看板使用料:相談 仲介手数料 1ヶ月 その他手数料 ー 契約期間 2年 契約種別
用途
-
物件の現況 ー 可能用途 指定あり 坪数 21.98坪
- 備考
























