物件ID:173411
情報公開日:2025年09月14日
情報更新日:2025年11月14日
立地
-
住所 神奈川県横浜市中区山下町222-1 建物名/所在階 山下町222-1店舗 2F/2階 最寄駅 JR根岸線関内駅
徒歩8分近隣駅1 ー 近隣駅2 ー
費用/契約
-
造作価格 ー 賃料(坪単価) 720,000円(10,531円) 管理費/共益費(坪単価) ー(ー) 保証金/敷金 ー / 3ヶ月 償却 1ヶ月 礼金 1ヶ月 更新料/再契約料 ー その他費用 ー 仲介手数料 1ヶ月 その他手数料 ー 契約期間 3年 契約種別
用途
-
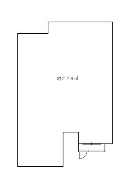
物件の現況 焼肉 可能用途 指定あり 坪数 68.37坪
- 備考























