物件ID:173315
情報公開日:2025年09月12日
情報更新日:2025年09月12日
立地
-
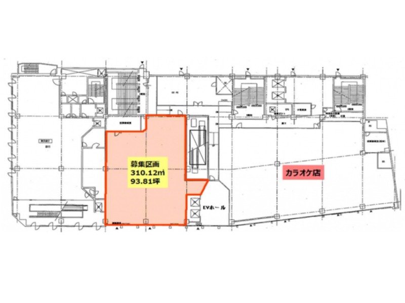
住所 神奈川県横須賀市若松町二丁目4 建物名/所在階 駅前ビル/8階 最寄駅 京急本線横須賀中央駅
徒歩1分近隣駅1 ー 近隣駅2 ー
費用/契約
-
造作価格 ご相談 賃料(坪単価) 1,031,910円(11,000円) 管理費/共益費(坪単価) 281,430円(3,300円) 保証金/敷金 10ヶ月 / ー 償却 0% 礼金 1ヶ月 更新料/再契約料 1ヶ月 その他費用 看板費 77,000円 仲介手数料 1ヶ月 その他手数料 ー 契約期間 5年 契約種別 普通賃貸借
用途
-
物件の現況 ー 可能用途 指定あり 坪数 93.81坪
- 備考
- 保証会社・火災保険必須 営業時間相談可
看板掲出料 月額70,00円(税別)





















