物件ID:172945
情報公開日:2025年09月10日
情報更新日:2025年09月29日
立地
-
住所 東京都品川区上大崎三丁目5-2 建物名/所在階 リードシー目黒イーストビル/地下1階 最寄駅 JR山手線目黒駅
徒歩5分近隣駅1 ー 近隣駅2 ー
費用/契約
-
造作価格 ー 賃料(坪単価) 740,000円(29,623円) 管理費/共益費(坪単価) ー(ー) 保証金/敷金 6ヶ月 / ー 償却 0% 礼金 ご相談 更新料/再契約料 ー その他費用 指定保証会社加入要 看板設置賃料:月額22,000円 仲介手数料 1ヶ月 その他手数料 ー 契約期間 5年 契約種別 普通賃貸借
用途
-
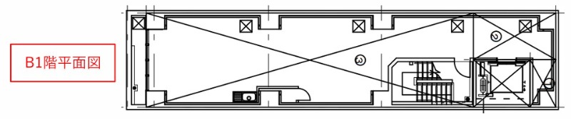
物件の現況 ー 可能用途 ご相談 坪数 24.98坪
- 備考
- 1フロア1テナント 天井高:2,870mm EV1基(不停止機能)
機械警備 電灯:100A 動力:150A 給水:30mm ガス有
床耐荷重: 3000N/㎡ 床 :コンクリート直均し





















