物件ID:172801
情報公開日:2025年09月09日
情報更新日:2025年09月09日
立地
-
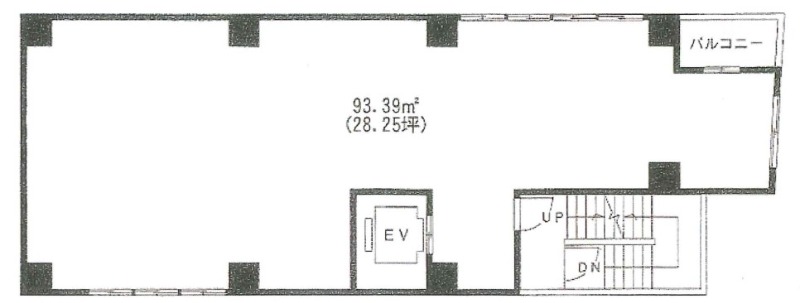
住所 東京都新宿区新宿三丁目36-14 建物名/所在階 3階 最寄駅 JR山手線新宿駅
徒歩2分近隣駅1 ー 近隣駅2 ー
費用/契約
-
造作価格 ー 賃料(坪単価) 1,243,000円(43,999円) 管理費/共益費(坪単価) 120,000円(4,672円) 保証金/敷金 15,000,000 / 0ヶ月 償却 11% 礼金 1ヶ月 更新料/再契約料 ご相談 その他費用 ー 仲介手数料 1ヶ月 その他手数料 ー 契約期間 5年 契約種別 普通賃貸借
用途
-
物件の現況 ー 可能用途 指定あり 坪数 28.25坪
- 備考




















