物件ID:172759
情報公開日:2025年09月09日
情報更新日:2025年09月29日
立地
-
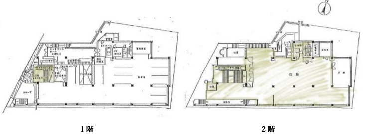
住所 東京都板橋区成増三丁目31-4 建物名/所在階 1~2階 最寄駅 東武東上線成増駅
徒歩5分近隣駅1 ー 近隣駅2 ー
費用/契約
-
造作価格 ー 賃料(坪単価) 1,210,000円(7,760円) 管理費/共益費(坪単価) ー(ー) 保証金/敷金 10ヶ月 / ー 償却 20% 礼金 1ヶ月 更新料/再契約料 1ヶ月 その他費用 ー 仲介手数料 1ヶ月 その他手数料 ー 契約期間 2年 契約種別
用途
-
物件の現況 ー 可能用途 指定あり 坪数 155.91坪
- 備考
- 保証会社加入必須 保険加入必須
平面図の色の付いた所が募集区画になります。メインは2階となります。




















