物件ID:172749
情報公開日:2025年09月09日
情報更新日:2025年12月04日
立地
-
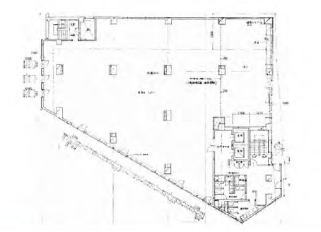
住所 東京都渋谷区渋谷四丁目2-12 建物名/所在階 EDGE南青山 3階/3階 最寄駅 東京メトロ銀座線表参道駅
徒歩8分近隣駅1 ー 近隣駅2 ー
費用/契約
-
造作価格 ー 賃料(坪単価) 5,506,215円(28,050円) 管理費/共益費(坪単価) ー(ー) 保証金/敷金 12ヶ月 / ー 償却 10% 礼金 0ヶ月 更新料/再契約料 ー その他費用 ー 仲介手数料 1ヶ月 その他手数料 ー 契約期間 3年 契約種別 普通賃貸借
用途
-
物件の現況 サービス(その他) 可能用途 指定あり 坪数 196.30坪
- 備考




















