物件ID:172511
情報公開日:2025年09月06日
情報更新日:2025年09月06日
立地
-
住所 東京都港区東麻布二丁目10-6 建物名/所在階 モンテクラーロ/1階 最寄駅 東京メトロ南北線麻布十番駅
徒歩1分近隣駅1 ー 近隣駅2 ー
費用/契約
-
造作価格 ー 賃料(坪単価) 462,000円(23,345円) 管理費/共益費(坪単価) ー(ー) 保証金/敷金 ー / 5ヶ月 償却 ご相談 礼金 1ヶ月 更新料/再契約料 ー その他費用 ー 仲介手数料 1ヶ月 その他手数料 ー 契約期間 3年 契約種別 普通賃貸借
用途
-
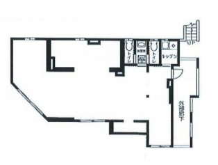
物件の現況 サービス(その他) 可能用途 ご相談 坪数 19.79坪
- 備考
- 保証会社加入要



















