物件ID:172309
情報公開日:2025年09月05日
情報更新日:2025年12月02日
立地
-
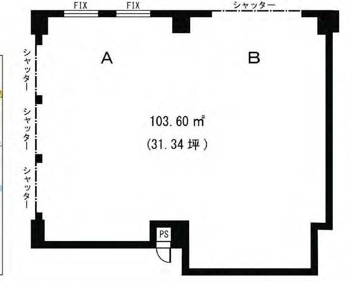
住所 東京都町田市金井四丁目23-28 建物名/所在階 グリーンハイムいちかわ 1F/1階 最寄駅 小田急線鶴川駅 近隣駅1 ー 近隣駅2 ー
費用/契約
-
造作価格 ー 賃料(坪単価) 300,000円(9,572円) 管理費/共益費(坪単価) 22,000円(702円) 保証金/敷金 5ヶ月 / ー 償却 20% 礼金 1ヶ月 更新料/再契約料 ー その他費用 ー 仲介手数料 1ヶ月 その他手数料 ー 契約期間 3年 契約種別 普通賃貸借
用途
-
物件の現況 ー 可能用途 指定あり 坪数 31.34坪
- 備考



















