物件ID:171268
情報公開日:2025年08月29日
情報更新日:2025年11月25日
立地
-
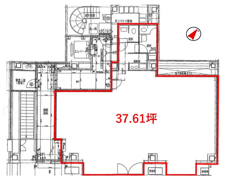
住所 東京都中央区銀座五丁目14-5 建物名/所在階 光澤堂GINZAビル/1階 最寄駅 東京メトロ日比谷線東銀座駅
徒歩1分近隣駅1 都営浅草線東銀座駅
徒歩1分近隣駅2 東京メトロ銀座線銀座駅
徒歩5分
費用/契約
-
造作価格 ー 賃料(坪単価) ご相談(0円) 管理費/共益費(坪単価) ー(ー) 保証金/敷金 12ヶ月 / ー 償却 0ヶ月 礼金 0ヶ月 更新料/再契約料 0ヶ月 その他費用 保証会社要加入 仲介手数料 1ヶ月 その他手数料 ー 契約期間 ー 契約種別 普通賃貸借
用途
-
物件の現況 ー 可能用途 指定あり 坪数 37.61坪
- 備考



















