物件ID:171082
情報公開日:2025年08月28日
情報更新日:2025年11月23日
立地
-
住所 東京都千代田区神田神保町二丁目10-8 建物名/所在階 ファーストエノモトビル 2F/2階 最寄駅 東京メトロ半蔵門線神保町駅
徒歩3分近隣駅1 ー 近隣駅2 ー
費用/契約
-
造作価格 ー 賃料(坪単価) 321,354円(19,800円) 管理費/共益費(坪単価) ー(ー) 保証金/敷金 3ヶ月 / ー 償却 1ヶ月 礼金 1ヶ月 更新料/再契約料 ー その他費用 ー 仲介手数料 1ヶ月 その他手数料 ー 契約期間 2年 契約種別 普通賃貸借
用途
-
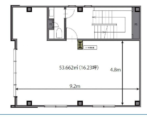
物件の現況 サービス(その他) 可能用途 指定あり 坪数 16.23坪
- 備考



















