物件ID:170581
情報公開日:2025年08月24日
情報更新日:2025年11月20日
立地
-
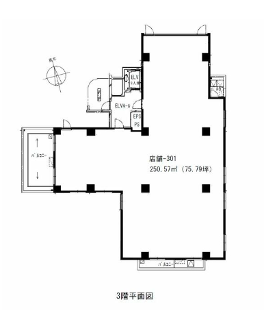
住所 東京都世田谷区奥沢六丁目21-11 建物名/所在階 (仮称)大明産業ビル 3階/3階 最寄駅 東急東横線自由が丘駅
徒歩6分近隣駅1 ー 近隣駅2 ー
費用/契約
-
造作価格 ー 賃料(坪単価) 1,496,000円(19,736円) 管理費/共益費(坪単価) 132,000円(1,741円) 保証金/敷金 8ヶ月 / ー 償却 22% 礼金 2ヶ月 更新料/再契約料 ー その他費用 ー 仲介手数料 1ヶ月 その他手数料 ー 契約期間 3年 契約種別
用途
-
物件の現況 ー 可能用途 指定あり 坪数 75.80坪
- 備考



















