物件ID:169586
情報公開日:2025年08月14日
情報更新日:2025年10月06日
立地
-
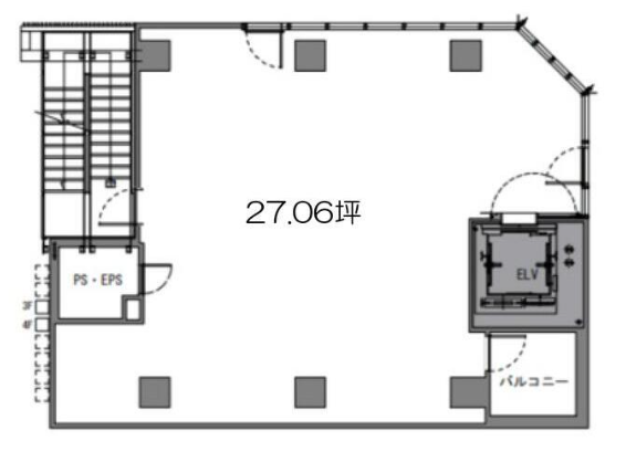
住所 東京都港区新橋四丁目26-4 建物名/所在階 愛場新橋タワー/4階 最寄駅 JR山手線新橋駅
徒歩4分近隣駅1 ー 近隣駅2 ー
費用/契約
-
造作価格 ー 賃料(坪単価) 1,190,640円(44,000円) 管理費/共益費(坪単価) ー(ー) 保証金/敷金 8ヶ月 / ー 償却 2ヶ月 礼金 0ヶ月 更新料/再契約料 1ヶ月 その他費用 保証会社加入要 保険不要 仲介手数料 1ヶ月 その他手数料 ー 契約期間 2年 契約種別
用途
-
物件の現況 ー 可能用途 指定あり 坪数 27.06坪
- 備考
- ダクト有、ガス設備有り 天高:3,640mm 24時間利用可
セコム使用料11,000円/月 地デジ使用料1,100円/月
防火対象物点検費用2,200円/月 1フロア1テナント EV


























