物件ID:169543
情報公開日:2025年08月13日
情報更新日:2025年11月06日
立地
-
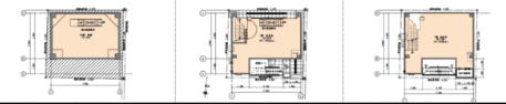
住所 東京都港区西麻布三丁目13-1 建物名/所在階 THE LIVRE NISHIAZABU/地下1~2階 最寄駅 東京メトロ日比谷線六本木駅
徒歩9分近隣駅1 東京メトロ千代田線乃木坂駅
徒歩9分近隣駅2 ー
費用/契約
-
造作価格 ー 賃料(坪単価) 1,210,000円(34,931円) 管理費/共益費(坪単価) ー(ー) 保証金/敷金 10ヶ月 / ー 償却 ご相談 礼金 1ヶ月 更新料/再契約料 ー その他費用 保証会社・保険等加入要 仲介手数料 1ヶ月 その他手数料 ー 契約期間 5年 契約種別 普通賃貸借
用途
-
物件の現況 ー 可能用途 指定あり 坪数 34.64坪
- 備考






















