物件ID:169513
情報公開日:2025年08月13日
情報更新日:2025年08月13日
立地
-
住所 神奈川県横浜市金沢区瀬戸16-32 建物名/所在階 THE PLACE八景/3階 最寄駅 京急本線金沢八景駅
徒歩1分近隣駅1 ー 近隣駅2 ー
費用/契約
-
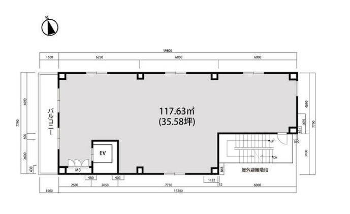
造作価格 ー 賃料(坪単価) 451,000円(12,674円) 管理費/共益費(坪単価) 19,360円(544円) 保証金/敷金 ー / 5ヶ月 償却 ご相談 礼金 0ヶ月 更新料/再契約料 ー その他費用 ー 仲介手数料 1ヶ月 その他手数料 ー 契約期間 3年 契約種別
用途
-
物件の現況 ー 可能用途 指定あり 坪数 35.58坪
- 備考






















