物件ID:169406
情報公開日:2025年08月11日
情報更新日:2025年11月04日
立地
-
住所 東京都品川区東五反田二丁目19-1 建物名/所在階 ビレジ五反田/1階 最寄駅 東急池上線五反田駅
徒歩7分近隣駅1 都営浅草線五反田駅
徒歩8分近隣駅2 JR山手線五反田駅
徒歩8分
費用/契約
-
造作価格 ー 賃料(坪単価) 629,500円(24,339円) 管理費/共益費(坪単価) ご相談(ご相談) 保証金/敷金 3,777,000 / ご相談 償却 4ヶ月 礼金 1ヶ月 更新料/再契約料 2ヶ月 その他費用 ー 仲介手数料 1ヶ月 その他手数料 ー 契約期間 2年 契約種別 普通賃貸借
用途
-
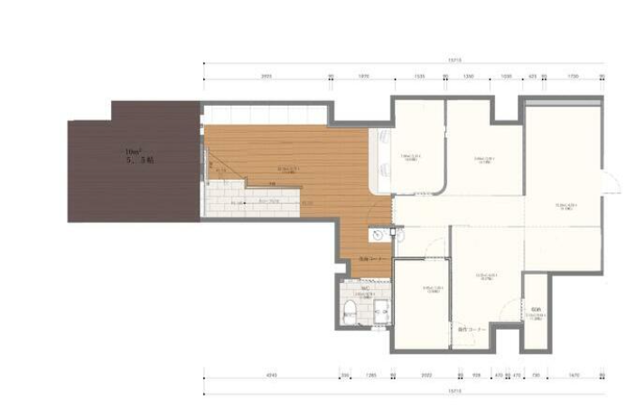
物件の現況 クリニック 可能用途 指定あり 坪数 25.86坪
- 備考
- 業態につきましてはお気軽にスタッフまでお申し付けくださいませ。
前テナントがクリニック。居抜きでの引き渡しになります。
内見は立会にて可能、退去時スケルトン戻し





















