物件ID:168762
情報公開日:2025年08月05日
情報更新日:2025年11月12日
立地
-
住所 神奈川県横浜市中区長者町九丁目158 建物名/所在階 ニューシティー21ビル 508/5階 最寄駅 JR根岸線関内駅
徒歩7分近隣駅1 京急本線日ノ出町駅
徒歩3分近隣駅2 ブルーライン関内駅
徒歩7分
費用/契約
-
造作価格 ー 賃料(坪単価) 330,000円(14,987円) 管理費/共益費(坪単価) 60,500円(2,747円) 保証金/敷金 1,980,000 / ー 償却 0% 礼金 390,500 更新料/再契約料 ー その他費用 ー 仲介手数料 1ヶ月 その他手数料 ー 契約期間 2年 契約種別
用途
-
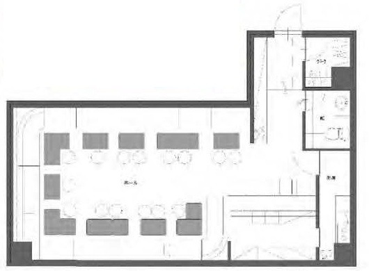
物件の現況 クラブ・キャバクラ 可能用途 指定あり 坪数 22.02坪
- 備考




















