物件ID:168135
情報公開日:2025年07月30日
情報更新日:2025年10月23日
立地
-
住所 東京都港区西新橋二丁目37-5 建物名/所在階 ローライビルディングⅡ/1階 最寄駅 都営三田線御成門駅
徒歩4分近隣駅1 ー 近隣駅2 ー
費用/契約
-
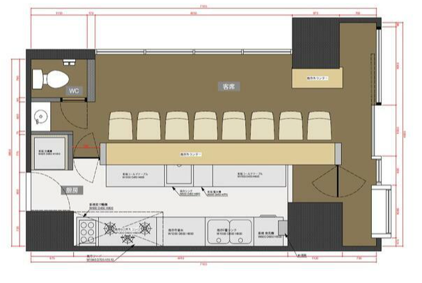
造作価格 4,850,000万円 賃料(坪単価) 308,000円(30,312円) 管理費/共益費(坪単価) 14,300円(1,407円) 保証金/敷金 10ヶ月 / 0ヶ月 償却 3ヶ月 礼金 2ヶ月 更新料/再契約料 1ヶ月 その他費用 造作譲渡手数料:売却金額×10%+10万(税抜) 仲介手数料 1ヶ月 その他手数料 ー 契約期間 2年 契約種別
用途
-
物件の現況 ラーメン 可能用途 指定あり 坪数 10.16坪
- 備考
- カラオケ不可




















