物件ID:167266
情報公開日:2025年07月22日
情報更新日:2026年01月08日
立地
-
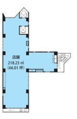
住所 東京都新宿区高田馬場四丁目8-7 建物名/所在階 花川ビル/4階 最寄駅 JR山手線高田馬場駅
徒歩1分近隣駅1 ー 近隣駅2 ー
費用/契約
-
造作価格 ー 賃料(坪単価) 1,452,220円(22,000円) 管理費/共益費(坪単価) 217,833円(3,299円) 保証金/敷金 0ヶ月 / 12ヶ月 償却 20% 礼金 2ヶ月 更新料/再契約料 1ヶ月 その他費用 製作費・清掃費・管球費別途あり 仲介手数料 1ヶ月 その他手数料 ー 契約期間 3年 契約種別
用途
-
物件の現況 ー 可能用途 指定あり 坪数 66.01坪
- 備考
- ※業種バッティングNG





















