物件ID:164597
情報公開日:2025年06月30日
情報更新日:2025年09月25日
立地
-
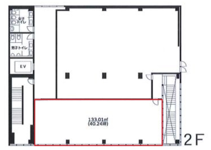
住所 神奈川県横浜市青葉区奈良一丁目3-7 建物名/所在階 横浜あおばメディカルガーデン/2階 最寄駅 東急こどもの国線こどもの国駅
徒歩1分近隣駅1 ー 近隣駅2 ー
費用/契約
-
造作価格 ー 賃料(坪単価) 598,400円(14,872円) 管理費/共益費(坪単価) 60,500円(1,503円) 保証金/敷金 10ヶ月 / 0ヶ月 償却 2ヶ月 礼金 1ヶ月 更新料/再契約料 ー その他費用 ー 仲介手数料 1ヶ月 その他手数料 ー 契約期間 15年 契約種別 普通賃貸借
用途
-
物件の現況 ー 可能用途 指定あり 坪数 40.24坪
- 備考



















