物件ID:163710
情報公開日:2025年06月23日
情報更新日:2025年09月16日
立地
-
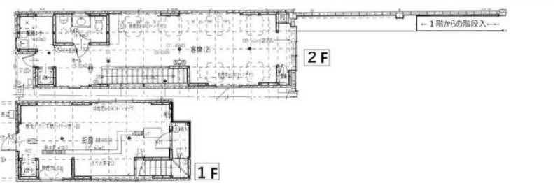
住所 神奈川県横須賀市大滝町二丁目22-5 建物名/所在階 大滝町2丁目店舗 2F/2階 最寄駅 京急本線横須賀中央駅
徒歩3分近隣駅1 ー 近隣駅2 ー
費用/契約
-
造作価格 ー 賃料(坪単価) 286,000円(9,523円) 管理費/共益費(坪単価) ー(ー) 保証金/敷金 5ヶ月 / ー 償却 20% 礼金 1ヶ月 更新料/再契約料 ー その他費用 造作譲渡代相談・商店街組合費8000円/月 仲介手数料 1ヶ月 その他手数料 ー 契約期間 5年 契約種別 普通賃貸借
用途
-
物件の現況 居酒屋 可能用途 指定あり 坪数 30.03坪
- 備考




















