物件ID:160767
情報公開日:2025年05月30日
情報更新日:2025年11月25日
立地
-
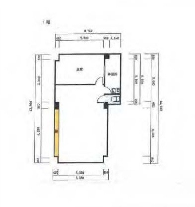
住所 東京都江戸川区平井三丁目30-2 建物名/所在階 ビューネタワー平井 2F/2階 最寄駅 JR中央・総武線平井駅
徒歩1分近隣駅1 ー 近隣駅2 ー
費用/契約
-
造作価格 ー 賃料(坪単価) 495,000円(16,685円) 管理費/共益費(坪単価) ー(ー) 保証金/敷金 ー / 6ヶ月 償却 3ヶ月 礼金 1ヶ月 更新料/再契約料 ー その他費用 ー 仲介手数料 1ヶ月 その他手数料 ー 契約期間 3年 契約種別
用途
-
物件の現況 サービス(その他) 可能用途 指定あり 坪数 29.67坪
- 備考



















