物件ID:160532
情報公開日:2025年05月28日
情報更新日:2025年12月04日
立地
-
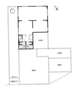
住所 東京都目黒区青葉台二丁目16-8 建物名/所在階 Fontaine目黒青葉台 102区画/1階 最寄駅 東京メトロ日比谷線中目黒駅
徒歩7分近隣駅1 ー 近隣駅2 ー
費用/契約
-
造作価格 ご相談 賃料(坪単価) 522,500円(29,653円) 管理費/共益費(坪単価) ー(ー) 保証金/敷金 6ヶ月 / 0ヶ月 償却 0% 礼金 2ヶ月 更新料/再契約料 1ヶ月 その他費用 指定保証会社・火災保険加入要 仲介手数料 1ヶ月 その他手数料 ー 契約期間 2年 契約種別
用途
-
物件の現況 サービス(その他) 可能用途 指定あり 坪数 17.62坪
- 備考
- 専有部分は目黒川に直接は面してないが目黒川から店舗専用アプローチ有
楽器不可

























