物件ID:160160
情報公開日:2025年05月25日
情報更新日:2025年08月20日
立地
-
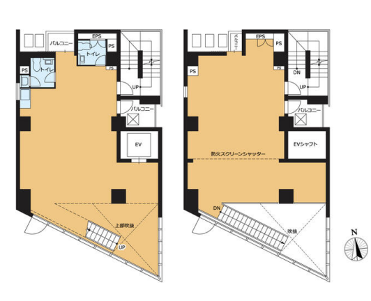
住所 東京都港区六本木七丁目19-9 建物名/所在階 VORT六本木/5~6階 最寄駅 東京メトロ日比谷線六本木駅
徒歩4分近隣駅1 ー 近隣駅2 ー
費用/契約
-
造作価格 ー 賃料(坪単価) 926,100円(26,398円) 管理費/共益費(坪単価) 115,764円(3,299円) 保証金/敷金 ー / 5ヶ月 償却 ご相談 礼金 1ヶ月 更新料/再契約料 1ヶ月 その他費用 ー 仲介手数料 1ヶ月 その他手数料 ー 契約期間 2年 契約種別
用途
-
物件の現況 サービス(その他) 可能用途 ご相談 坪数 35.08坪
- 備考
- 保証会社加入要



















