物件ID:160137
情報公開日:2025年05月25日
情報更新日:2025年11月11日
立地
-
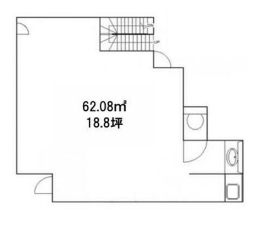
住所 東京都江東区木場五丁目2-5 建物名/所在階 木場Yビル2 403/4階 最寄駅 東京メトロ東西線木場駅
徒歩1分近隣駅1 東京メトロ東西線門前仲町駅
徒歩16分近隣駅2 ー
費用/契約
-
造作価格 ー 賃料(坪単価) 418,000円(22,258円) 管理費/共益費(坪単価) ご相談(ご相談) 保証金/敷金 3ヶ月 / ご相談 償却 2ヶ月 礼金 1ヶ月 更新料/再契約料 1ヶ月 その他費用 ー 仲介手数料 1ヶ月 その他手数料 ー 契約期間 2年 契約種別
用途
-
物件の現況 サービス(その他) 可能用途 指定あり 坪数 18.78坪
- 備考
- 業態につきましてはお気軽にスタッフまでお申し付けくださいませ。
木場駅すぐの好立地物件です。



















