物件ID:159248
情報公開日:2025年05月17日
情報更新日:2025年11月14日
立地
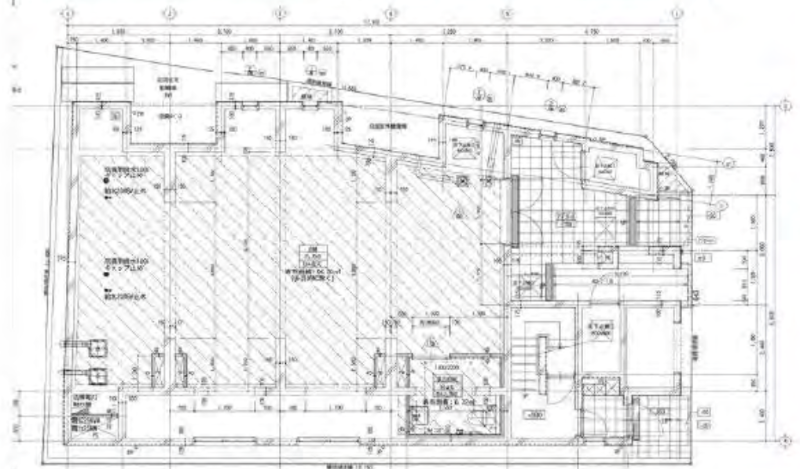
-
住所 東京都世田谷区祖師谷四丁目23-20 建物名/所在階 グルエ祖師谷 1F/1階 最寄駅 小田急線祖師ヶ谷大蔵駅
徒歩8分近隣駅1 ー 近隣駅2 ー
費用/契約
-
造作価格 ー 賃料(坪単価) 550,000円(17,566円) 管理費/共益費(坪単価) ー(ー) 保証金/敷金 6ヶ月 / ー 償却 ご相談 礼金 2ヶ月 更新料/再契約料 ー その他費用 ー 仲介手数料 1ヶ月 その他手数料 ー 契約期間 10年 契約種別 普通賃貸借
用途
-
物件の現況 ー 可能用途 指定あり 坪数 31.31坪
- 備考




















