物件ID:156733
情報公開日:2026年01月09日
情報更新日:2026年01月09日
立地
-
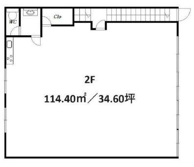
住所 千葉県千葉市美浜区幸町一丁目14-7 建物名/所在階 美浜区幸町1丁目テナント/2階 最寄駅 京成千葉線西登戸駅
徒歩6分近隣駅1 ー 近隣駅2 ー
費用/契約
-
造作価格 ー 賃料(坪単価) 275,000円(7,946円) 管理費/共益費(坪単価) 25,000円(722円) 保証金/敷金 5ヶ月 / ー 償却 ご相談 礼金 1ヶ月 更新料/再契約料 ー その他費用 ー 仲介手数料 1ヶ月 その他手数料 ー 契約期間 2年 契約種別
用途
-
物件の現況 サービス(その他) 可能用途 指定あり 坪数 34.61坪
- 備考






















