物件ID:155803
情報公開日:2025年04月15日
情報更新日:2026年01月13日
立地
-
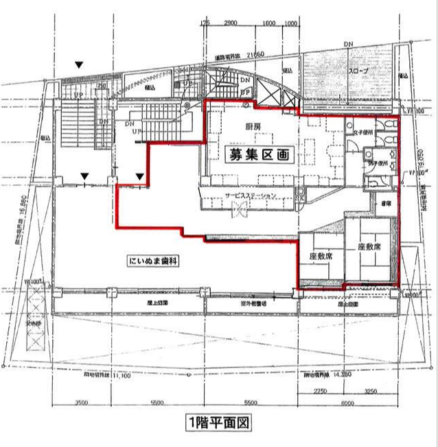
住所 埼玉県朝霞市西原二丁目12-6 建物名/所在階 一利喜(いちりき)ビル/1階 最寄駅 東武東上線朝霞台駅
徒歩9分近隣駅1 ー 近隣駅2 ー
費用/契約
-
造作価格 ー 賃料(坪単価) 413,600円(11,003円) 管理費/共益費(坪単価) ー(ー) 保証金/敷金 10ヶ月 / ー 償却 20% 礼金 1ヶ月 更新料/再契約料 1ヶ月 その他費用 保証会社加入要 仲介手数料 1ヶ月 その他手数料 ー 契約期間 6年 契約種別 普通賃貸借
用途
-
物件の現況 そば・うどん・麺類 可能用途 指定あり 坪数 37.59坪
- 備考
- 前テナント:うどん・そば店 居抜き引渡し/造作譲渡無償
駐車場:有、10000円/月 トイレあり 天井高:2.5m以上
空調機・排気口・排煙設備・グリストラップ・厨房防水・排水設備:有





















