物件ID:150469
情報公開日:2025年03月03日
情報更新日:2025年08月29日
立地
-
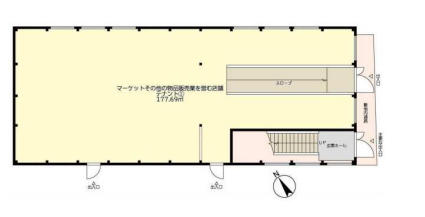
住所 東京都千代田区麹町一丁目5-4 建物名/所在階 ライオンズステーションプラザ半蔵門/1階 最寄駅 東京メトロ半蔵門線半蔵門駅
徒歩1分近隣駅1 ー 近隣駅2 ー
費用/契約
-
造作価格 ー 賃料(坪単価) ご相談(0円) 管理費/共益費(坪単価) 275,000円(5,383円) 保証金/敷金 10ヶ月 / ー 償却 ご相談 礼金 1ヶ月 更新料/再契約料 ご相談 その他費用 共益費275,000円(税込) 仲介手数料 1ヶ月 その他手数料 ー 契約期間 3年 契約種別 普通賃貸借
用途
-
物件の現況 ー 可能用途 ご相談 坪数 51.08坪
- 備考



















