物件ID:150179
情報公開日:2025年02月28日
情報更新日:2025年12月24日
立地
-
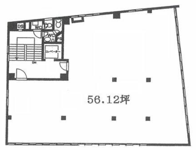
住所 東京都中央区銀座一丁目13-12 建物名/所在階 銀友ビル/6階 最寄駅 東京メトロ有楽町線銀座一丁目駅
徒歩1分近隣駅1 ー 近隣駅2 ー
費用/契約
-
造作価格 ー 賃料(坪単価) 987,712円(17,600円) 管理費/共益費(坪単価) ー(ー) 保証金/敷金 6ヶ月 / ー 償却 30% 礼金 1ヶ月 更新料/再契約料 1ヶ月 その他費用 保証会社・火災保険加入必須 仲介手数料 1ヶ月 その他手数料 ー 契約期間 2年 契約種別 普通賃貸借
用途
-
物件の現況 サービス(その他) 可能用途 指定あり 坪数 56.12坪
- 備考
- OAフロア、タイルカーペット 個別空調 室外トイレ EV1基
24時間利用可 有人管理 天井高2.6m
1993年11月全面改修工事実施済み
























