物件ID:136857
情報公開日:2024年10月22日
情報更新日:2026年01月04日
立地
-
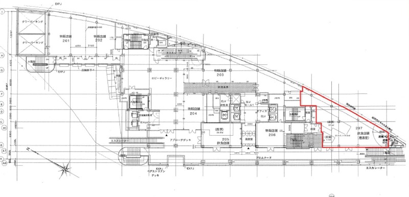
住所 神奈川県横浜市中区桜木町一丁目101-1 建物名/所在階 CROSS GATE 207区画/2階 最寄駅 JR根岸線桜木町駅
徒歩1分近隣駅1 ブルーライン桜木町駅
徒歩1分近隣駅2 みなとみらい線馬車道駅
徒歩3分
費用/契約
-
造作価格 ー 賃料(坪単価) ご相談(0円) 管理費/共益費(坪単価) ー(ー) 保証金/敷金 12ヶ月 / ー 償却 0% 礼金 0ヶ月 更新料/再契約料 1ヶ月 その他費用 ー 仲介手数料 1ヶ月 その他手数料 ー 契約期間 5年 契約種別
用途
-
物件の現況 居酒屋 可能用途 指定あり 坪数 63.86坪
- 備考




















