物件ID:131796
情報公開日:2025年06月02日
情報更新日:2025年08月27日
立地
-
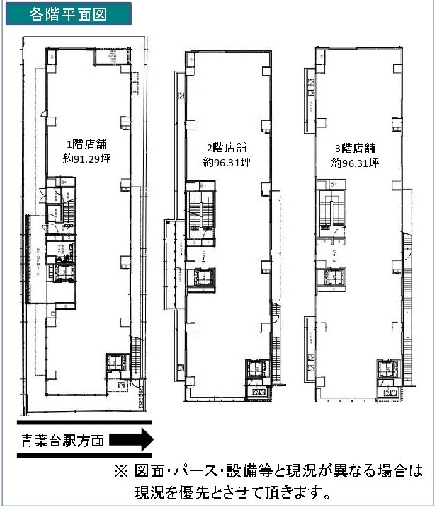
住所 神奈川県横浜市青葉区榎が丘1-11 建物名/所在階 (仮称)榎が丘計画/2階 最寄駅 東急田園都市線青葉台駅
徒歩3分近隣駅1 ー 近隣駅2 ー
費用/契約
-
造作価格 ー 賃料(坪単価) 1,320,000円(13,705円) 管理費/共益費(坪単価) ご相談(ご相談) 保証金/敷金 6ヶ月 / ー 償却 ご相談 礼金 1ヶ月 更新料/再契約料 1ヶ月 その他費用 ー 仲介手数料 1ヶ月 その他手数料 ー 契約期間 3年 契約種別
用途
-
物件の現況 ー 可能用途 指定あり 坪数 96.31坪
- 備考



















